
相關產品:
保溫球閥
氣動三通球閥
蝸輪固定球閥
電動對夾式球閥
全鍛鋼高壓硬密封球閥
精小型氣動O型切斷球閥
電子式電動O型球閥
氣動O型切斷球閥
電動O型調節球閥
氣動保溫球閥
襯氟球閥
外螺紋球閥
不銹鋼法蘭球閥
高壓焊接球閥
廣式內螺紋球閥
三通四密封球閥
三片式承插焊球閥
法蘭三通球閥
廣式法蘭球閥
法蘭放料球閥
鍛鋼硬密封球閥
三片式對焊球閥
三片式法蘭球閥
三片式球閥
二片式球閥
一片式球閥
對夾式薄型球閥
電動三通球閥
保溫縮徑球閥
超薄型對夾保溫球閥
對夾式保溫球閥
氣動固定球閥
蝸輪浮動法蘭球閥
螺紋不銹鋼三通球閥
不銹鋼整體高溫球閥
氣動浮動不銹鋼球閥
電動硬密封V型調節球閥
電動固定球閥
鍛鋼固定球閥
廣式法蘭球閥詳細說明:
Q41F廣式法蘭球閥密封可靠,結構簡單,密封面與球面常在閉合狀態,不易被介質沖蝕,易于操作和維護,適用于水、溶劑、油品、氣體、酸和天然氣等一般工作介質,而且還適用于工作條件惡劣的介質,如氧氣、過氧化氫、甲烷和乙烯等,在各行業得到廣泛的應用。閥體可以是整體的,也可以是組合式的。
廣式法蘭球閥產品介紹:
Q41F廣式法蘭球閥體積小、安裝方便的特點,又具有國標法蘭全通徑不易泄漏的優點,一舉改變了以往方式法蘭球閥流量小,易泄漏的固疾,也解決了國標法蘭球閥過于笨重的缺點,而具閥體可采用精鑄造工藝,外形美觀大方。全通徑、大徑量,連接尺寸符合廣式法蘭球閥標準,預計將在越來越多的管道上得到廣泛的使用。
廣式法蘭球閥工作原理:
Q41F廣式法蘭球閥是用帶有圓形通道的球體作啟閉件,球體隨閥桿轉動實現啟閉動 作的閥門。球閥的啟閉件是一個有孔的球體,繞垂直于通道的軸線旋轉,從而達到啟閉通道的目的。主要用于截斷或接通管道和設備介質,也可用于流體的調節與控制,球閥流體阻力小,結構簡單,體積小, 重量輕,緊密可靠,操作維修方便,不會引起閥門密封面的侵蝕,適用范圍廣。
廣式法蘭球閥產品特點:
1、優質的密封圈材料具有耐高溫、耐腐蝕之性能。
2、安裝簡便,能以任意方向安裝于管道中的任意部位。
3、閥體內通道平整光滑,可以輸送粘性流體、漿液以及固體顆粒。
4、體積小、安裝方便的特點,又具有國標法蘭全通徑不易泄漏的優點。
廣式法蘭球閥主要零件材料:
適用介質 | 型號 | 閥體 | 球體、閥桿 | 手柄 | 密封圈 | 墊片、填料 |
水、蒸汽、油品 |
Q41F-16C、Q41F-25C Q41F-40C |
A105、45 | 1Cr18/1Cr18Ni9Ti |
不 銹 鋼 SS304 |
聚四氟乙烯PTFE增強聚四氟乙烯VUILUK PTFE對位聚苯PPL | 聚四氟乙烯PTFE對位聚苯PPL |
硝酸類 |
Q41F-16P、Q41F-25P Q41F-40P |
SS304/1Cr18Ni19Ti | SS304/1Cr18Ni9Ti | |||
醋酸類 |
Q41F-16R、Q41F-25R Q41F-40R |
SS316/Cr18Ni12Mo2Ti | SS316/1Cr18Ni12Mo2Ti |
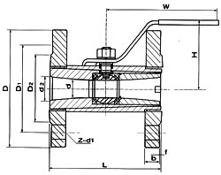
廣式法蘭球閥結構尺寸圖:
廣式法蘭球閥主要尺寸:
公稱通徑 | d | d2 | L | D | D1 | D2 | b | f | Z-d1 | H | W | |
DNmm | in | |||||||||||
15 | 1/2 | 10 | 15 | 92 | 95 | 65 | 45 | 14 | 2 | 4-14 | 60 | 110 |
20 | 3/8″ | 12.6 | 20 | 106 | 75 | 105 | 55 | 14 | 2 | 4-14 | 65 | 110 |
25 | 1″ | 17 | 24 | 109 | 85 | 115 | 65 | 16 | 2 | 4-14 | 70 | 110 |
32 | 1 1/4″ | 22 | 32 | 126 | 100 | 135 | 78 | 16 | 2 | 4-18 | 85 | 145 |
40 | 1 1/2″ | 25 | 38 | 136 | 110 | 145 | 85 | 16 | 3 | 4-18 | 90 | 145 |
50 | 2″ | 32 | 46 | 154 | 125 | 160 | 100 | 18 | 3 | 4-18 | 98 | 177 |
65 | 2 1/2″ | 44 | 60 | 170 | 145 | 180 | 120 | 20 | 3 | 8-18 | 110 | 190 |
80 | 3″ | 50 | 72 | 195 | 160 | 195 | 135 | 22 | 3 | 8-18 | 130 | 240 |
100 | 4″ | 65 | 92 | 215 | 180 | 215 | 155 | 22 | 3 | 8-18 | 150 | 260 |