
直接作用薄膜式彈簧減壓閥
產品型號:200P
發布時間:2008-5-23
直接作用薄膜式彈簧減壓閥主要由膜片、調節彈簧、閥座、閥瓣等零件組成,利用膜片傳感下游壓力變化,驅動閥瓣,改變和控制閥門開度實現減壓穩壓功能。通過調節調節螺栓調定彈簧壓力設定出口壓力。
下一個產品:直接作用薄膜式支管式減壓閥
上一個產品:內螺紋活塞式蒸汽減壓閥
相關產品:
200P水用減壓閥結構特點和用處:
直接作用薄膜式彈簧減壓閥主要由膜片、調節彈簧、閥座、閥瓣等零件組成,利用膜片傳感下游壓力變化,驅動閥瓣,改變和控制閥門開度實現減壓穩壓功能。通過調節調節螺栓調定彈簧壓力設定出口壓力。 直接作用薄膜式減壓閥減壓、穩壓動作平穩靈敏。適用于高層建筑及單元供水管路和用于水力控制閥的配套導閥。
200P水用減壓閥主要技術參數和性能指標
公稱壓力(Mpa) | 1.0 | 1.6 |
殼體試驗壓力(Mpa)* | 1.5 | 2.4 |
密封試驗壓力(Mpa) | 1.0 | 1.6 |
*高進口壓力(Mpa) | 1.0 | 1.6 |
出口壓力范圍(Mpa) | 0.09-0.8 | 0.1-1.2 |
壓力特性偏差(Mpa)△P2P | GB12244-1989 | |
流量特性偏差(Mpa)△P2G | GB12244-1989 | |
滲漏量 | 0 | |
工作溫度 | 0℃-80℃ | |
*:殼體試驗不包括膜片、閥蓋。 |
200P水用減壓閥主要零件材料:
零件名稱 | 零件材料 |
閥體 閥蓋 | 銅合金 |
閥座 | H62 |
閥瓣 | H62 |
閥桿 | H62 |
O型圈 | 丁腈橡膠 |
密封圈 | 丁腈橡膠 |
膜片 | 夾織物丁腈橡膠 |
調節彈簧 | 60Si2Mn |
過濾器 | 不銹鋼 |
200P水用減壓閥流量系數(Cv):
DN | 15(1/2") | 20(3/4") | 25(1") | 32(1-1/4") | 40(1-1/2") | 50(2") |
Cv | 0.5 | 0.6 | 1.2 | 1.8 | 3.0 | 5.0 |
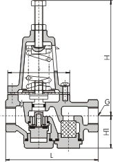
200P水用減壓閥結構圖:
200P水用減壓閥連接尺寸:
DN | G | L | H1 | H | D |
15(1/2") | G1/2" | 112 | 40 | 150 | 75 |
20(3/4") | G3-4" | 140 | 55 | 190 | 90 |
25(1") | G1" | 140 | 55 | 195 | 90 |
32(1-1/4") | G1-1/4" | 165 | 55 | 212 | 98 |
40(1-1/2") | G1-1/4" | 190 | 55 | 215 | 98 |
50(2") | G2" | 200 | 65 | 265 | 120 |
連接形式:內螺紋連接
相關產品