
相關產品:
全天候呼吸閥產品用途:
GFQ-2型新型呼吸閥用于安裝原油、汽油、煤油、輕柴油、芳烴等固定頂式儲罐上的主要安全設備,是起蒸發損耗與保護儲罐在受超壓或真空時免遭破壞的作用。此閥通常與阻火器配套使用。
全天候呼吸閥產品結構特點:
全天候呼吸閥具有通風量大,密封性能好,泄漏量小,耐腐蝕等特點。
全天候呼吸閥主要性能規范:
A級正壓 | 355Pa (36毫米水柱) |
負壓 | 295Pa (30毫米水柱) |
B級正壓 | 980Pa (100毫米水柱) |
負壓 | 295Pa (30毫米水柱) |
C級正壓 | 1765Pa (180毫米水柱) |
負壓 | 295Pa (30毫米水柱) |
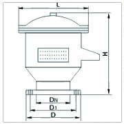
全天候呼吸閥結構尺寸圖:
全天候呼吸閥主要外形尺寸:
規格 |
重 量 ( Kg/臺) |
安裝尺寸(毫米) | ||||
D1 | D | L | H | nר | ||
DN50 | 6.5 | Ø110 | Ø140 | 160 | 255 | 4×18 |
DN80 | 9.8 | Ø150 | Ø185 | 213 | 260 | 4×18 |
DN100 | 12 | Ø170 | Ø205 | 265 | 290 | 4×18 |
DN150 | 21 | Ø225 | Ø260 | 305 | 330 | 8×18 |
DN200 | 31 | Ø280 | Ø315 | 355 | 350 | 8×18 |
DN250 | 35 | Ø335 | Ø370 | 420 | 400 | 12×18 |
波紋型阻火器零部件材料:
閥體材料 | 碳鋼WCB、不銹鋼304、316、 |
阻火芯件材料 | 不銹鋼防爆阻火波紋板 |
密封件材料 | 耐油石棉橡膠、四氟PTFE |
環境溫度 ℃ | ≤480 |
公稱壓力(MPa) | 0.6~5.0 |
防爆級別 | BS5501:ⅡA、ⅡB、ⅡC |
國標法蘭連接外形尺寸: GB、JB
規格 | 安裝尺寸(mm) | ||||
D2 | D | L | H | N-d | |
DN50 | Ø110 | Ø140 | 220 | 235 | 4×14 |
DN80 | Ø150 | Ø185 | 280 | 270 | 4×18 |
DN100 | Ø170 | Ø205 | 325 | 275 | 4×18 |
DN150 | Ø225 | Ø260 | 425 | 290 | 8×18 |
DN200 | Ø280 | Ø315 | 495 | 305 | 8×18 |
DN250 | Ø335 | Ø370 | 595 | 320 | 12×18 |
DN300 | Ø395 | Ø435 | 655 | 405 | 12×23 |
美標法蘭連接外形尺寸:
ANSI、API、ASME 可供JIS標準
規格 | 安裝尺寸(mm) | ||||
D2 | D | L | H | N-d | |
2" | Ø120.5 | Ø152 | 220 | 235 | 4×19 |
3" | Ø152.5 | Ø190 | 280 | 270 | 4×19 |
4" | Ø190.5 | Ø229 | 325 | 275 | 8×19 |
6" | Ø241.5 | Ø279 | 425 | 290 | 8×22 |
8" | Ø298.5 | Ø343 | 495 | 305 | 8×22 |
10" | Ø362 | Ø406 | 595 | 320 | 12×25 |
12" | Ø432 | Ø483 | 655 | 405 | 12×25 |